推薦產品
河南華東起重機械設備公司
服務熱線:400 086 9590
公司:河南華東起重機械設備有限公司
聯系人:賈經理
聯系電話:13903802779
地址:河南新鄉市封丘縣起重機工業園區
當前位置: 起重機 > 起重產品 > 龍門吊
花架式龍門吊|MH型花架龍門吊
花架式龍門吊|MH型花架龍門吊廠家直銷: MH型花架式龍門吊多少錢一臺?花架式龍門吊生產廠家、單梁花架龍門吊報價、雙梁花架龍門吊價格!花架式龍門吊廠家直銷供應,MH型衍架式龍門吊圖片、MH型花架龍門吊型號、MH型花架龍門吊規格、花架式龍門吊參數,購買MH型花架式龍門吊價格!<BR/>MH型花架式龍門吊為半定制機械,需根據您的現場條件和需求確定軌道尺寸和其他參數。
MH型花架式龍門吊簡介介紹:
花架式龍門吊也有花架龍門吊、衍架梁龍門吊、花架子龍門吊、衍架龍門吊的稱呼。單梁花架龍門吊、雙梁花架龍門吊、單主梁花架龍門吊、雙梁花架龍門吊。
MH型花架式龍門吊規格型號:
1、花架龍門吊型號:MH型花架式龍門吊、MHE型花架式龍門吊;
2、花架龍門吊規格:1噸、2噸、3噸、5噸、10噸、16噸、20噸、可非標定做。
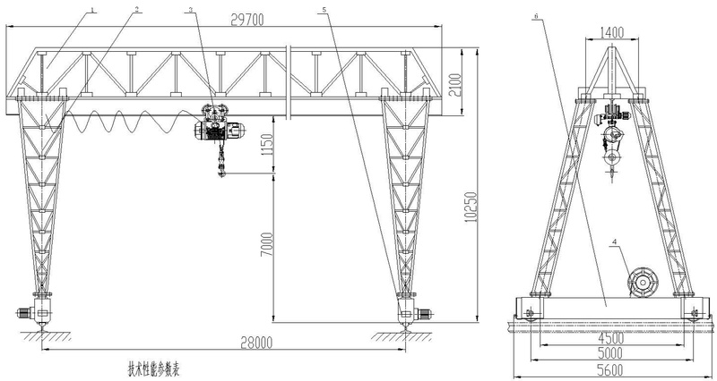
MH型花架式龍門吊結構圖紙:
MH型花架式龍門吊技術參數:
1、跨度:17米、18米、21米、22米、24米、25米、27米、30米、35米、可非標定制。
2、起升高度:6米、9米、12米、18米、24米、30米、可非標訂做。
3、工作級別:A3/M3;
4、主鉤起升速度:0.3M/MIN、0.7M/MIN、0.8M/MIN、3M/MIN、7M/MIN、8M/MIN、可定做;
5、大車運行速度:10M/MIN、20M/MIN、30M/MIN、40M/MIN、可定制;
6、小車運行速度:20M/MIN、可非標定做;
以上參數需要根據實際起重量、跨度、起升高度設計生產,也可根據客戶使用需要設計定做;
7、電源:三相交流 380V 50HZ 可訂制其他電壓(如出口國外,需要參考他國電源電壓);
MH型花架式龍門吊適用范圍:
花架龍門吊廣泛適用于地鐵施工、建筑工地、物流運輸、鐵路公路、倉庫貨場、水泥制品廠、機械裝配廠、水電站等露天作業的場地中作起重運輸裝卸等工作,也適合于在室內車間工作。
MH型花架式龍門吊購買說明:
購買MH型花架龍門吊請請告知以下數據,以便我們能更快確認您的需求!
1、龍門吊起重量;
2、龍門吊跨度(軌道中心至導軌中心);
3、龍門吊起升高度(鉤中心接地);
4、是否需要外懸(請提供外懸長度);
5、需要訂購導軌和電纜嗎?(請提供運行長度);
6、如果您有更多的詳細資料,請告知,我們會更給出優惠的龍門吊價格。

加微信好友

微信小程序

微信公眾號
400-086-9590
139-0380-2779
- 售后服務
-























