推薦產品
河南華東起重機械設備公司
服務熱線:400 086 9590
公司:河南華東起重機械設備有限公司
聯系人:賈經理
聯系電話:13903802779
地址:河南新鄉市封丘縣起重機工業園區
當前位置: 起重機 > 起重產品 > 龍門吊
MHL型單梁偏掛龍門吊|MHL型偏掛龍門吊
MHL型單梁偏掛龍門吊|MHL型偏掛龍門吊廠家直銷: MHL型單梁偏掛龍門吊多少錢一臺?MHL型單梁偏掛龍門吊生產廠家報價!專業MHL型單梁偏掛龍門吊廠家直銷供應,MHL型單梁偏掛龍門吊圖片、MHL型單梁偏掛龍門吊型號、MHL型單梁偏掛龍門吊規格、MHL型單梁偏掛龍門吊參數,購買MHL型單梁偏掛龍門吊價格報價!<BR/>MHL型單梁偏掛龍門吊為半定制機械,需根據您的現場條件和需求確定軌道尺寸和其他參數。
MHL型單梁偏掛龍門吊也有MHL型單主梁偏掛龍門吊,MHL型電動葫蘆偏掛龍門吊,MHL型單主梁電動葫蘆龍門吊,MHL型偏掛龍門吊等叫法。
MHL型單梁偏掛龍門吊簡介介紹:
MHL型偏掛龍門吊還分為MHL型偏掛龍門吊(L型偏掛龍門吊)、MHC型偏掛龍門吊(C型偏掛龍門吊)兩種;單梁偏掛龍門吊是配套CD型電動葫蘆或MD型電動葫蘆使用的一般用途起重機,多用于露天場所及倉庫的裝卸或抓取。
MHL型單梁偏掛龍門吊規格型號:
單梁偏掛龍門吊型號:MHL型單梁偏掛龍門吊,MHLE型單梁偏掛龍門吊、L型單梁偏掛龍門吊、C型單梁偏掛龍門吊;
單梁偏掛龍門吊規格:1噸、2噸、3噸、5噸、10噸、16噸、20噸等規格,更大噸位可選用MDG型單主梁吊鉤門式起重機。
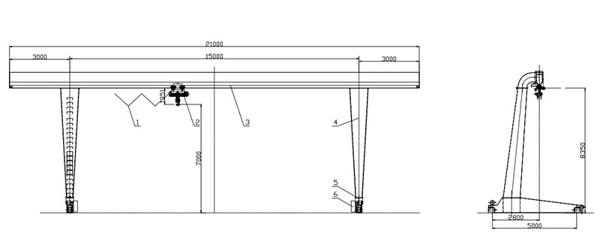
MHL型單梁偏掛龍門吊結構圖紙:
MHL型單梁偏掛龍門吊技術參數:
單梁偏掛龍門吊懸臂長度沒有固定參數可以訂制(米),兩側外懸可根據客戶要求定做,另外可以做雙葫蘆偏掛龍門吊,一臺偏掛龍門吊上邊裝兩臺電動葫蘆,兩臺電動葫蘆可以同時操作也可獨立操作。
MHL型單梁偏掛龍門吊定制定做:
單梁偏掛龍門吊多數參數可以定制,也可客戶提供參數定做;大車運行速度、小車運行速度、起升速度、是否需要副鉤、電壓電伏、跨度、起升高度、操作方式都可訂做;
MHL型單梁偏掛龍門吊廠家公司:
河南單梁偏掛龍門吊生產廠家提供單梁偏掛龍門吊定制、非標單梁偏掛龍門吊設計定做等業務;單梁偏掛龍門吊規格齊全。提供單梁偏掛龍門吊生產、運輸、安裝、檢驗、使用培訓等一條龍服務,交鑰匙工程為客戶減輕采購成本。

加微信好友

微信小程序

微信公眾號
400-086-9590
139-0380-2779
- 售后服務
-























