Product Series
推薦產品
河南華東起重機械設備公司
服務熱線:400 086 9590
公司:河南華東起重機械設備有限公司
聯系人:賈經理
聯系電話:13903802779
地址:河南新鄉市封丘縣起重機工業園區
當前位置: 起重機 > 起重機文章
雙小車橋式起重機、絕緣橋式起重機
時間:2024-05-18來源:起重機廠家瀏覽次數:1
雙小車橋式起重機
雙小車橋式起重機簡介
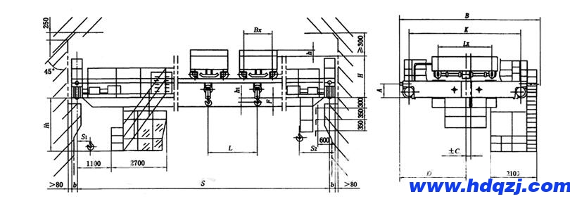
雙小車橋式起重機與吊鉤橋式起重機的區別在于主梁上設置兩臺小車,雙小車能夠獨自起升,也可獨自運轉;當需求抬吊長件物品時,經過操控臺上的轉換開關,完成同步起升,同步運轉。
雙小車橋式起重機圖片展示


雙小車橋式起重機使用范圍
使用于廠礦企業的車間或露天庫房吊運長件材。
雙小車橋式起重機工作級別參數
1、起重量:2.5T+2.5T - (200+200/80)/10T(可根據實踐要求定做)
2、跨度:7.5m-34.5m(可根據實踐要求定做)
3、起升高度:可根據實踐要求定做
4、作業等級:A3 - A6
5、作業環境溫度-25°C~40°C
雙小車橋式起重機結構特色

絕緣橋式起重機
絕緣橋式起重機簡介
絕緣加料起重機是在絕緣橋式起重機的基礎上通過增設加料小車,完結下列工藝操作:
·為電解槽加氟化鋁
·吊運電解槽上部組織和槽殼
·出鋁并計量
·吊運陽極母線提升結構
·電解車間的其它零散吊運作業
*要用于電解車間內高溫熔鹽、大電流、強磁場、多粉塵和氟化氫氣氛的環境。
絕緣橋式起重機圖片展示

絕緣橋式起重機
32t絕緣橋式起重機

絕緣橋式起重機使用范圍
抓斗橋式起重機廣泛使用于工廠、庫房、料場等不同場合,根據不同用戶的需求,本設備設有地上和操作室兩種操作方法。
絕緣橋式起重機組成
絕緣加料起重機由橋架、大車運轉組織、東西小車、出鋁小車、加料小車、電氣控制系統、空壓機及氣路控制系統、液壓站及油路控制系統幾部分組成。
橋架選用三梁三小車結構,主梁上鋪有供小車行駛用的軌跡,偏軌布置,起重小車和出鋁小車同軌跡運轉,加料小車在另側軌跡運轉。
大車運轉組織選用8輪2驅動,配軸裝式三合一減速器,設有水平導向輪、
東西小車用于吊運一般物品,起升組織類似于吊鉤橋式起重機,運轉組織選用軸裝式三合一驅動。
出鋁小車是出鋁及吊運重物的專用組織。結構方式同東西小車一樣。為確保吊鉤無擺動,設有剛性導向架。并用電子稱對鋁水稱重,可大屏幕顯現單臺槽吸鋁量和累加量及總重。運轉組織選用軸裝式三合一驅動。吊鉤絕緣防磁。
加料小車由運轉組織、車架、料倉、下料管卷揚設備、料倉上下限料位計、料位電子丈量設備及下料閥等部件組成。運轉組織選用軸裝式三合一驅動。
司機室和電氣室均配有工業冷暖空調。




















