Product Series
推薦產品
河南華東起重機械設備公司
服務熱線:400 086 9590
公司:河南華東起重機械設備有限公司
聯系人:賈經理
聯系電話:13903802779
地址:河南新鄉市封丘縣起重機工業園區
當前位置: 起重機 > 起重機文章
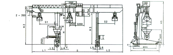
5噸10噸MDZ型單梁抓斗門式起重機技術參數
時間:2024-01-18來源:起重機廠家瀏覽次數:1
MDZ型單梁抓斗門式起重機是在MDG型門式起重機基礎上,配以抓斗作為吊具的門式起重機,可用于冶金、水泥、化工及其它企業的倉庫和車間在室內或露天和固定跨間從事礦石、石灰石、礦粉、焦炭、煤砂等散粒物的搬運工作。常用噸位有5噸、10噸,跨度一般不超過35米。該型起重機的起重量包含抓斗自重。我廠為大家介紹下MDZ型抓斗門式起重機的主要技術參數。

MDZ型抓斗門式起重機結構圖:

產品技術參數規格表:
| 起重量 | t | 5 | 10 | |||||||||||||||||||||||||
| 工作級別 | A6 | |||||||||||||||||||||||||||
| 跨度 | m | 18 | 22 | 26 | 30 | 35 | 18 | 22 | 26 | 30 | 35 | |||||||||||||||||
| 速度 | 小車 | 起升 | m/min | 37.08 | 38.29 | |||||||||||||||||||||||
| 開閉 | 37.08 | 38.29 | ||||||||||||||||||||||||||
| 運行 | 40.12 | 38.96 | ||||||||||||||||||||||||||
| 大車運行 | 40 | 47 | 40 | 47 | ||||||||||||||||||||||||
| 電動機 | 起升 | kW | YZR225M-8/2×15 | YZR280M-10/2×37 | ||||||||||||||||||||||||
| 小車運行 | YZR225M2-6/7.5 | YZR160M2-6/7.5 | ||||||||||||||||||||||||||
| 大車運行 | YZR160L-6/2×11 | YZR200L-8/2×15 | YZR160L-6/2×11 | YZR200L-8/2×15 | ||||||||||||||||||||||||
| 主要尺寸 | B | 9583 | 9779 | 10583 | 10779 | |||||||||||||||||||||||
| B1 | 608 | 736 | 608 | 736 | ||||||||||||||||||||||||
| H2 | -10970 | -12970 | -12770 | -11770 | -13770 | -13570 | ||||||||||||||||||||||
| H3 | 10540 | 12340 | 12140 | 11940 | 11140 | 12940 | 12740 | 12640 | ||||||||||||||||||||
| H4 | 660 | 762 | 660 | 762 | ||||||||||||||||||||||||
| H5 | 14558 | 16558 | 15742 | 17472 | ||||||||||||||||||||||||
| L1 | 8512 | 10512 | 13012 | 13512 | 8512 | 10512 | 13012 | 13512 | ||||||||||||||||||||
| L2 | 8506 | 10506 | 12506 | 8506 | 10506 | 12506 | ||||||||||||||||||||||
| L3 | 730 | 910 | 730 | 910 | ||||||||||||||||||||||||
| L4 | -1230 | -1280 | -1360 | -1410 | -1260 | -1310 | -1360 | -1370 | ||||||||||||||||||||
| L5 | 745 | 888 | 745 | 888 | ||||||||||||||||||||||||
| L6 | 1118 | |||||||||||||||||||||||||||
| S1 | 5000 | 7000 | 9000 | 5000 | 7000 | 9000 | ||||||||||||||||||||||
| S2 | 5000 | 7000 | 9000 | 5000 | 7000 | 9000 | ||||||||||||||||||||||
| 重量 | 大車 | t | 12.474 | 12.518 | 12.632 | 12.688 | 15.357 | 15.406 | 15.445 | 15.508 | ||||||||||||||||||
| 滑線 | 59.544 | 61.720 | 69.989 | 85.149 | 92.148 | 66.065 | 68.363 | 84.197 | 93.093 | 99.238 | ||||||||||||||||||
| 電纜 | 60.957 | 63.133 | 71.402 | 86.562 | 93.561 | 67.478 | 66.776 | 85.61 | 94.506 | 100.651 | ||||||||||||||||||
| 最大輪壓 | kn | 130 | 166 | 185 | 213 | 233 | 196 | 207 | 217 | 240 | 256 | |||||||||||||||||
| 抓斗 | 型號 | u | 47G | 109 | 110 | 105 | 106 | 101 | 102 | 115 | 116 | 119 | 120 | 123 | 124 | 127 | ||||||||||||
| 類型 | 輕型 | 中性 | 重型 | 超重型 | 重型 | 中性 | 輕型 | |||||||||||||||||||||
| 容積 | m^3 | 3 | 1.5 | 1 | 0.75 | 1.5 | 2 | 3 | 5 | |||||||||||||||||||
| 容重 | t/m^3 | 0.92 | >1-1.7 | >1.7-2.5 | >2.5-3.3 | >2.5-3.3 | 1.8-2.5 | 1-1.7 | <1 | |||||||||||||||||||
| 自重 | kg | 2242 | 2546 | 2615 | 2506 | 2568 | 2479 | 2546 | 4730 | 4793 | 4850 | 4913 | 4801 | 4866 | 4800 | |||||||||||||
| 主要尺寸 | b1 | 3000 | 2704 | 2900 | 2530 | 2690 | 2340 | 2500 | 2920 | 3080 | 3220 | 3380 | 3430 | 3590 | 3900 | |||||||||||||
| b2 | 1852 | 1444 | 1238 | 1160 | 1416 | 1528 | 1764 | 2060 | ||||||||||||||||||||
| l | 1594 | 1798 | 1901 | 1940 | 1717 | 1661 | 1543 | 1395 | ||||||||||||||||||||
| 起升高 | 跨度 | 18 | H/H1/H2 | 8/4/4.2 | 7.5/4/5.5 | |||||||||||||||||||||||
| 22 | ||||||||||||||||||||||||||||
| 26 | 10/2/4.2 | 9.5/2/5.5 | ||||||||||||||||||||||||||
| 30 | ||||||||||||||||||||||||||||
| 35 | ||||||||||||||||||||||||||||
| 爆斗車 | 容積 | m^3 | 13 | |||||||||||||||||||||||||
| 容重 | 0.8-1 | |||||||||||||||||||||||||||
| 薦用鋼軌 | 15kg/m | 24kg/m | ||||||||||||||||||||||||||
| 43kg/m | ||||||||||||||||||||||||||||
| 電源 | 三相交流 380V 50HZ | |||||||||||||||||||||||||||
-
28
2025-05
電動葫蘆抓斗門式起重機電機為什么會發生飛車問題?實際現象是啥?
飛車,是電動葫蘆抓斗門式起重機電動機運轉環節中,轉速比超過常規運轉的一種異常狀況。從造成飛車的根本原因,有一些是反射性要素,而有的則是電氣控制系統要素。 通常情況下,三相異步電機轉速比由開關電源頻率和極少數決策,不容易超出其同歩轉速比,電動機發生飛車問題,一定是因為外部的反射性要素。此類電動機的飛車,大多數發生在負荷為左右運作的工作狀況,即吊裝機器設備中,發生問題較多的是豎直起伏比較大的鉸車機器...詳細
-
27
2025-02
MHZ型單梁抓斗門式起重機通常采用哪種控制系統和技術?
MHZ型單梁抓斗門式起重機通常采用**的控制系統和技術,以確保其運行穩定、**和高效。常見的控制系統和技術包括: PLC控制系統:可編程邏輯控制器(PLC)是控制系統的核心,負責執行各種起重任務的程序化控制,如協調單梁運動、抓斗操作等。 變頻調速技術:通過變頻器實現起重機電機的調速控制,可根據實際需要調節起重速度和運行速度,提高起重機的精準性和能效。 人機界面(HMI):通過HMI界面,操...詳細
-
27
2025-02
MHZ型單梁抓斗門式起重機的主要結構特點是什么?
MHZ型單梁抓斗門式起重機的主要結構特點包括以下幾個方面: 單梁結構:MHZ型起重機采用單梁結構設計,即只有一根橫跨起重區域的梁,簡化了結構,減少了自重,提高了起重機的整體穩定性和工作效率。 抓斗裝置:配備抓斗裝置,可實現對各種貨物的抓取、搬運和卸載操作,適用于多種起重作業需求。 門式支架:采用門式支架結構,支撐起重機梁,使起重機具有較大的起重跨度和高度,適用于處理大型貨物和作業空間要求較...詳細
-
13
2024-12
MZ雙梁抓斗門式起重機的日常運營與維護、多長時間進行一次?
起重機廠家日常中對設備哪些部件檢查和維護。MZ雙梁抓斗門式起重機作為一種大型機械設備,日常中做好維護檢查保養的是很重要,為了保證作業過程中設備的**進行作業,每次結束后要對MZ雙梁抓斗門式起重機設備進行檢查維護。設備有很多部件,要對那些部件進行檢查維護,該如何進行操作。跟著河南鴻升小編來看下吧。 1.電機、減速器的維護保養。電機和減速器對MZ雙梁抓斗門式起重機的運行速度和效率有很大影響。對電機外...詳細
-
10
2024-09
雙梁抓斗門式起重機具有哪些主要的技術參數和性能特點?
雙梁抓斗門式起重機是一種常見的起重設備,具有多項重要的技術參數和性能特點,以下是對其主要技術參數和性能特點的詳細介紹。 S先,從技術參數方面來看,雙梁抓斗門式起重機通常具有以下幾項主要參數: 起重量和起升高度:雙梁抓斗門式起重機的起重量通常在幾噸到數百噸不等,起升高度則根據實際需求可達數十米*上百米。 工作級別:根據國家標準,起重機的工作級別通常包括M3、M4、M5等級,不同工作級別適用...詳細
-
10
2024-09
在哪些行業和領域常常會使用雙梁抓斗門式起重機?
雙梁抓斗門式起重機作為一種重要的起重設備,在各種行業和領域都得到了廣泛的應用。它憑借其大起重量、穩定性和靈活性,成為了許多行業中不可或缺的重要工具。以下是雙梁抓斗門式起重機常見的應用領域及相關介紹。 S先,在制造業領域,雙梁抓斗門式起重機被廣泛應用于工廠、車間等場所。在汽車制造、機械加工、船舶制造等行業,需要頻繁搬運重型零部件和大型機械設備,雙梁抓斗門式起重機能夠提供可靠的吊裝和搬運服務,保...詳細




















